Generation Word - Bible Teaching Ministry   Generation Word - Bible Teaching Ministry
 

Bible Teaching Ministry

Online Study
Bible Teacher

Verse by VerseTeaching  
Genesis  
Exodus  
Leviticus  
Numbers  
Deuteronomy  
Joshua  
Judges  
Ruth  
First Samuel  
Second Samuel  
First Kings  
Second Kings  
Second Chronicles  
Ezra  
Nehemiah  
Job  
Proverbs  
Isaiah  
Jeremiah  
Lamentations  
Ezekiel  
Daniel  
Habakkuk  
Haggai  
Zechariah  
Malachi  
Matthew  
John  
Gospels  
Acts  
Romans  
First Corinthians  
Second Corinthians  
Galatians  
Ephesians  
Philippians  
Colossians  
First Thessalonians  
Second Thessalonians  
First Timothy  
Second Timothy  
Titus  
Philemon  
Hebrews  
James  
First Peter  
Second Peter  
First John  
Second John  
Third John  
Jude  
Revelation  
Topical Teaching:  
Framework Bible School  
Bible School 2004  
Bible School 2012-2014  
30 Questions  
Faith  
Mystery of the Church  
Defending the Faith  
Prayer  
The Nephilim  
Wake Up, Church!  
Basics for Living  
Basic Doctrine  
End Times (Eschatology) Basics  
Eternal Rewards  
Politacal Platform of Lord  
Rebuking Reform Doctrine  
Jerusalem  
Miscellaneous  
   
 

Bible Teaching, Bible Study, Teaching, Verses, Sermons, online, mp3, classesA Bible Teaching Ministry of Galyn Wiemers


Daily Devotions, Evening and Morning Devotional

 

Sunrise on Temple Mount in Jerusalem; Back to Previous Devotion

August 26 - Morning

"In the twenty-fifth year of our exile, at the beginning of the year, on the tenth of the month, in the fourteenth year after the fall of the city — on that very day the hand of the Lord was on me and he took me there.

In visions of God he took me to the land of Israel and set me on a very high mountain, on whose south side were some buildings that looked like a city. He took me there, and I saw a man whose appearance was like bronze; he was standing in the gateway with a linen cord and a measuring rod in his hand.

The man said to me,
'Son of man, look carefully and listen closely and pay attention to everything I am going to show you, for that is why you have been brought here.
Tell the people of Israel everything you see.'

I saw a wall completely surrounding the temple area. The length of the measuring rod in the man’s hand was six long cubits, each of which was a cubit and a handbreadth. He measured the wall;
it was one measuring rod thick and one rod high."

- Ezekiel 40:1-5

Sunset on the Sea of Galilee; Click to go to next devotion  
Ezekiel Walks Through the New Temple    

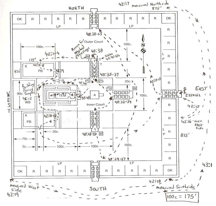
When Ezekiel received the message recorded in Ezekiel 40 it had been 13 years since Ezekiel’s last message (Ezekiel 33:21-39:29). Like the previous vision received in 586 BC this new message in April of 573 BC (Ezekiel 40) speaks of a future restoration of Israel. In this vision of 573 BC, 13 years after Jerusalem had fallen, Ezekiel is taken to an unidentified mountain with an unidentified city on its southern slope. It becomes apparent that this mountain is Mount Moriah in a future state with the restored city of Jerusalem setting on its south side.

Meeting Ezekiel at this future site is an angelic figure with a measuring rod 10 feet and 6 inches long. The angel also holds a linen cord which will be used like a tape measure. (A regular cubit was about 18 inches long and a handbreadth was about 3 inches. The “long cubit” that was in use in Ezekiel’s time was 21 inches which was 1 cubit plus 1 handbreadth, or 18 inches + 3 inches.)

Ezekiel is shown a large, magnificent temple that will someday be constructed and then used by the people of Israel when they are ultimately restored to the land of Israel. The angel with the appearance of bronze commands Ezekiel to:

  • Look carefully
  • Listen closely
  • Pay attention to everything (which includes details such as the measurements and location of rooms)
  • Tell the people of Israel everything he learns

Ezekiel Walks Through the New Temple, Ezekiel 40-43

This tour and the recording of these details will continue from chapter 40 up until 42:20. At that point in Ezekiel’s narrative the Glory of God returns to Israel and enters this temple in Ezekiel 43:1-9.

  Christian Quote from Church History

“The real Son of God is at your side. He is beginning to turn you into the same kind of thing as Himself. He is beginning, so to speak, to ‘inject’ His kind of life and thought, His Zoe, into you; beginning to turn the tin soldier into a live ma. The part of you that does not like it is the part that is still tin.”
– C. S. Lewis in
“Mere Christianity”
(read it here)

Something to Ponder??

Newborn babies in the ancient Near East were rubbed with salt. This practice is mentioned in Ezekiel 16:4.
It was practiced for hygienic purposes with the intention
of cleaning and strengthening the baby’s skin. Some scholars say the salt indicated that the child would grow up to be honest. The practice of running the infant with salt is still practiced by those who claim that it makes the baby strong.
(more here)

 
Hebrew and Greek Word Study   Facts and Information
Chadal (Hb) - cease (Eng) - The Hebrew word chadal means “to cease,” “to come to an end,”
“to desist” and “to lack.”
The poor would never chadal to be part of society according to Deuteronomy 15:11.
 
    A first century Christian cemetery produced ossuaries with the names: Mary, Martha, Siloam, Jairus, Simon Bar-Jonah. (Details HERE, HERE, and HERE. Image HERE.))
     
Confession to Action   Facts and Information
Do I read the Old Testament?
I will read and know the Old Testament so I can live of life with understanding and insight.
  "The sluggard buries his hand in the dish; he is too lazy to bring it back to his mouth."
- Proverbs 26:15
     
Read the Bible in a Year; Bible Reading Program
Read one chapter each day to read through the narrative portion (or, the story line) of the whole Bible Genesis-Acts in one year. Read the General Text of the Bible Read the Complete Text of the Bible in a Year
2 Kings 10 Ezra 7 (458 BC) Lamentations 3:37 - 4:22
 
Prayer for Today
Personal Prayer Church Prayer Item National Prayer Concerns World Prayer Concerns

Concern for those
that need help

Hearts of
servants

USA and Israel relationship

Malta
 
Photo of Jerusalem; Pictures of Israel Bible Map and Diagram
A water fall at En Gedi.

Cities in central Israel located on a map.

Cities in central Israel located on a map.

A water fall at En Gedi. (Details here.) (click on images for larger size)
   
Details and Explanation of Sets & Reps Devotional System Here Make a donation to support Generation Word Bible Teaching Ministry
   
 
 
 
Reps & Sets is a daily Bible devotional for Christians from Generation Word Bible Teaching used each morning and evening.
 

 
 
 
  © 2005 Generation Word  
Generation Word - Bible Teaching Ministry   Generation Word - Bible Teaching Ministry